REZERVACE Prohlídkový den je v úterý 14.3. Nabízím k prodeji řadový rodinný dům v klidně lokalitě V Peklovcích ve Vysokém Mýtě. Rodinný dům 5+KK má dvě obytné podlaží a suterén s garáží. Z terasy je vstup na zahradu se zapuštěným bazénem a zahradním domkem.
Dům zkolaudovaný v roce 1993 a po částečné rekonstrukci v roce 2020. Pozemek o rozloze 293 m2 (zastavěné 134 m2 a 159 m2 zahrada). Dům má nově udělaný otopný systém a o vytápění se stará plynový kotel značky Viessmann. Okna v ložnici jsou opatřena elektrickými předokenními žaluziemi. V domě jsou nové dřevěné dveře s obložkovou zárubní, v garáži jsou vrata na dálkové ovládaní.
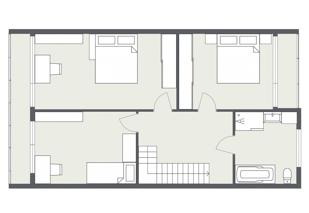
Přízemí domu:
V přízemí domu se nachází vstupní chodba se šatní stěnou, toaleta s umyvadlem, schodiště do suterénu domu nebo do patra. V přízemí veliký obývací pokoj s kuchyňí, jídelnou a pracovnou. Z obývacího pokoje je vstup na terasu a z ní na zahradu.
Patro domu:
V patře se pak nachází tři obytné místnosti, všechny s přístupem na balkóny a koupelna. Koupelna je vybavena sprchovým koutem, vanou, umyvadlem a záchodem. Všechny místnosti mají jako podlahovou krytinu plovoucí podlahu nebo koberec, v koupelně je dlažba. Místnosti mají nové obložkové dřevěné dveře.
Suterén:
V suterénu domu se nachází garáž s elektrickými garážovými vraty na dálkové ovládání a dílna, oddělená od garáže příčkou a regálem. Dále se v suterénu nachází technická místnost, prádelna, WC, sklep a východ na zahradu, u kterého je ještě jeden sklep s vchodem zvenčí.
Zahrada:
Zahrada za domem má cestu z dlaždic, zelenou část s možností osazení okrasných rostlin, velký zapuštěný bazén a zahradní domek.
Technické údaje:
Plocha pozemku: 293 m2
Zastavěná plocha: 134 m2
Plocha zahrady: 159 m2
Další části: Garáž, zahradní domek
Počet NP: 2
Počet PP: 1
Střecha: Plochá
Vodovod : obecní voda
Elektroinstalace: 230/400 V
Plynovod: Ano
Odpad: kanalizace
Stav objektu: velmi dobrý
Dům bude volný cca v srpnu tohoto roku, nebo dle domluvy.
K této nemovitosti není ke dni zveřejnění inzerce zpracovaný energetický štítek, dle zákona je proto nemovitost dočasně do jeho předložení inzerována v energetické třídě G.
Město Vysoké Mýto leží ve východních Čechách uprostřed Pardubického kraje na řece Loučné. K 1. 1. 2020 ve Vysokém Mýtě bydlelo 12 288 obyvatel.
Bylo založeno Přemyslem Otakarem II. v roce 1262 jako královské město a zanedlouho poté se stalo městem českých královen. Z doby založení se dochoval pravidelný půdorys s pravoúhlou sítí ulic a centrálním náměstím o rozměrech 130 x 150 metrů, které je téměř čtvercové a svou plochou patří k největším náměstím v Čechách. V historickém jádru města se dochovaly významné památky k nimž patří kostel. sv. Vavřince, zvonice ze 16.století, Pražská, Litomyšlská a Choceňská brána. Dlouhá staletí těžilo ze své polohy na důležité obchodní cestě (Trstenické stezce) vedoucí ze středních Čech na Moravu. Do novodobé historie se zapsalo jako kulturní i průmyslové centrum.

Pamětihodnosti:
telefon: +420 608 233 027
e-mail: hrdina@pohoda-rk.cz
web: https://michalhrdina.cz
facebook:
Kompletní nabídka nemovitostí realitní kanceláře